Типы систем вентиляции
Приточно-вытяжная система
Эта система обеспечивает циркуляцию воздуха в двух направлениях: приток свежего воздуха и удаление отработанного воздуха. Приточные установки подают свежий воздух в помещение, в то время как вытяжные установки удаляют загрязненный воздух. Это позволяет поддерживать оптимальный микроклимат и обеспечивать комфортные условия для пребывания людей.Приточная вентиляция
Приточная вентиляция работает за счет нагнетания свежего воздуха в помещение с помощью приточной установки. Отток воздуха происходит естественным путем через вентиляционные решетки, зазоры в окнах и дверях. Такая система помогает поддерживать постоянный приток свежего воздуха, улучшая качество воздуха в помещении.Вытяжная система
Вытяжная система предназначена для удаления отработанного, перегретого или загрязненного воздуха из помещения. Чаще всего она используется в производственных помещениях и заведениях общественного питания, где необходимо удалять воздух из определенных мест, например, над кухонной плитой. Это помогает предотвратить накопление вредных веществ и поддерживать здоровую атмосферу.Система с рекуперацией тепла
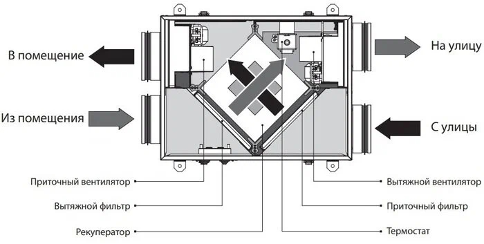
Система с рекуперацией тепла позволяет использовать тепло отводимого воздуха для обогрева поступающего свежего воздуха. Это значительно снижает затраты на отопление, так как тепло не теряется, а повторно используется. Такая система особенно эффективна в холодное время года, когда необходимо поддерживать комфортную температуру в помещении.Центральная вентиляция
Центральная вентиляция предназначена для комплексной обработки воздуха и подачи подготовленного воздуха в помещение. Обработка включает фильтрацию воздуха для удаления загрязнений, его охлаждение или обогрев до нужной температуры, а также осушение или увлажнение. Это обеспечивает высокий уровень комфорта и здоровья для находящихся в помещении людей.Энергоэффективные VAV системы
Энергоэффективные VAV (Variable Air Volume) системы автоматически поддерживают постоянное давление в воздушном канале. Это позволяет регулировать объем подаваемого воздуха в зависимости от потребностей, что значительно снижает энергопотребление и повышает эффективность работы системы вентиляции.
Выбор типа вентиляции для объекта - наша с вами общая задача.
Для чего нужна вентиляция?
Нормализация уровня углекислого газа: Углекислый газ, который мы выдыхаем, накапливается в помещении и может вызывать усталость, вялость и ощущение духоты. Вентиляция обеспечивает постоянное обновление воздуха, удаляя избыток углекислого газа.
Нормализация влажности: Вентиляция помогает своевременно удалять излишне влажный воздух, предотвращая образование плесени в углах и на стенах.
Дополнительные функции: Фильтрация воздуха устраняет загрязнения, делая его здоровым и безопасным, а функция подогрева предотвращает риск простуды от холодного уличного воздуха.
Основные параметры систем вентиляции
Производительность: Учитывается количество бытовой техники, число проживающих и площадь помещений. Оптимальное значение воздухообмена для коттеджей — от 1000 до 2000 м³/ч. Расчёт: площадь помещения умножается на высоту и на 2.
Уровень шума: Высокая скорость работы вентиляции увеличивает шум. Не стоит выбирать слишком мощные системы, чтобы избежать лишних расходов и шума. Для коттеджа оптимальная скорость воздушного потока — от 13 до 15 м/с.
Мощность: Калорифер регулирует температуру поступающего воздуха, которая не должна превышать +16°C. Мощность калорифера рассчитывается исходя из максимальных температур (плюсовых и минусовых). Например, при -10°C на улице, калорифер должен нагревать воздух минимум на 26°C. Для офисов может использоваться до 50 кВт, для квартир достаточно 1-5 кВт.





